Logo: Direct Owner Moraira estate agents

Tel: +34 966 829 503

Language EnglishLanguage DutchLanguage SpanishLanguage FrenchLanguage German

BENISSA

Villa

2.995.000€

Ref: DF3991

 520m2
 1142m2
 No
 Town: N/A
 4
 4
 Beach: N/A
 Yes
 Build N/A
 EPC Rating:
Modern Ibiza-style villa for sale in Benissa, Costa Blanca. New build with sea views, 4 bedrooms, swimming pool and personalised finishing options
This modern villa in Benissa is a new build project on the Costa Blanca, designed in contemporary Ibiza style. The property is being built on a generous plot of over 1,000 m² and has panoramic sea views. It is possible to choose personal finishes and materials during construction.
Description
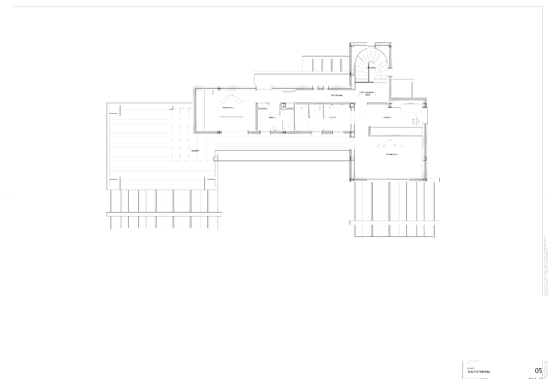
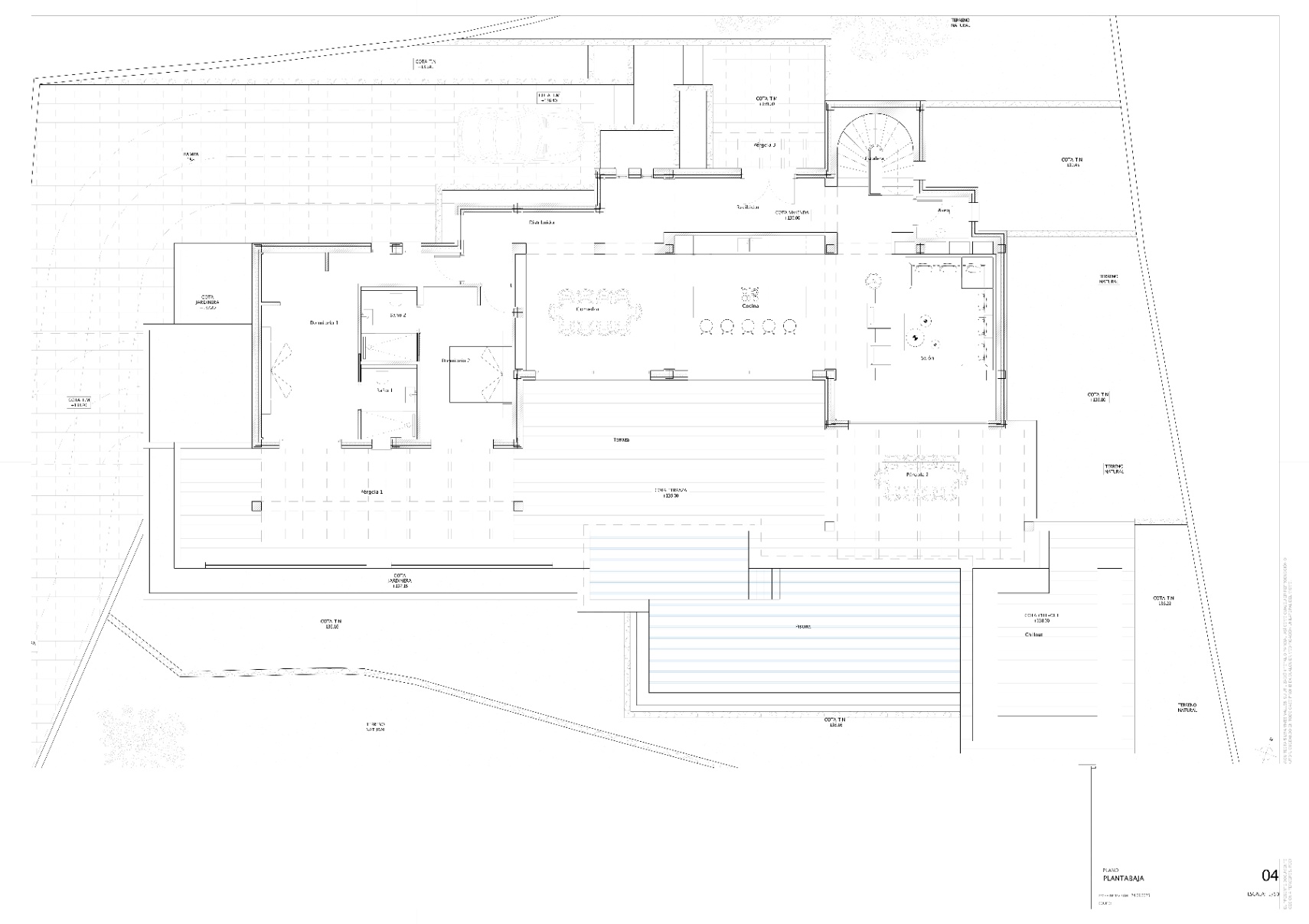
The property is spread over several levels and combines modern architecture with natural elements. Thanks to the large windows and open layout, you can enjoy plenty of light and panoramic sea views throughout. The villa will have a spacious living-dining room with open kitchen, 4 bedrooms, each with en-suite bathroom, guest toilet, direct access to the terraces and an infinity pool. Underfloor heating, air conditioning and double glazing. The buyer can choose between a version with or without a closed garage. Both options are the same price. The version without a garage has a planned fitness room.
Special features
4 en-suite bedroomsGenerous plotSouth-facingPanoramic sea viewsPopular Ibiza styleUnderfloor heating and air conditioningChoice of enclosed garage or fitness areaWhy view this villa
Central location between Moraira and CalpeCombination of Ibiza charm and modern comfortPossibility of personalised finishes during constructionThis villa for sale in Benissa has a beautiful design and is comfortable and luxurious. An excellent option for lovers of the Ibiza style.
Would you like more information about this interesting project Please contact our office and we will be happy to help you.

FLOOR PLANS

Measure for measure

ENQUIRE

About this property

Carreterra Moraira - Teulada No 1, Floor 1, Suite 10, Moraira 03724 Alicante
+34 966 829 503
info@directowner.co.uk
www.directowner.co.uk

Direct Owner on Facebook Direct Owner on Google Plus Direct Owner on Instagram Direct Owner on Linked In Direct Owner on Pinterest Direct Owner on Twitter Direct Owner on Skype