Logo: Direct Owner Moraira estate agents

Tel: +34 966 829 503

Language EnglishLanguage DutchLanguage SpanishLanguage FrenchLanguage German

BENISSA

Villa

2.850.000€

Ref: DF4004

 716m2
 800m2
 No
 Town: N/A
 4
 3
 Beach: N/A
 Yes
 Build N/A
 EPC Rating:
Modern villa for sale in La Fustera, Benissa Costa new build with panoramic sea views, infinity pool, 4 bedrooms and high-quality finishes. Only 300 metres from the beach
This modern villa with panoramic sea views is being built just 500 metres from La Fustera beach. An international supermarket, Playa La Fustera, the Eco-path and various restaurants are within walking distance. In less than 10 minutes by car, you can reach the centre of Calpe. A contemporary villa that combines natural materials, refined design and comfort in a central location.
Description
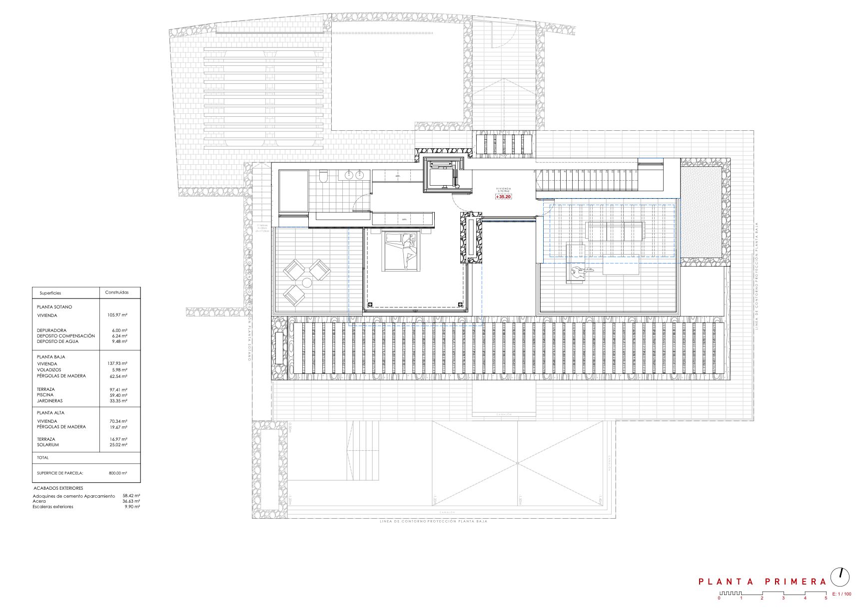
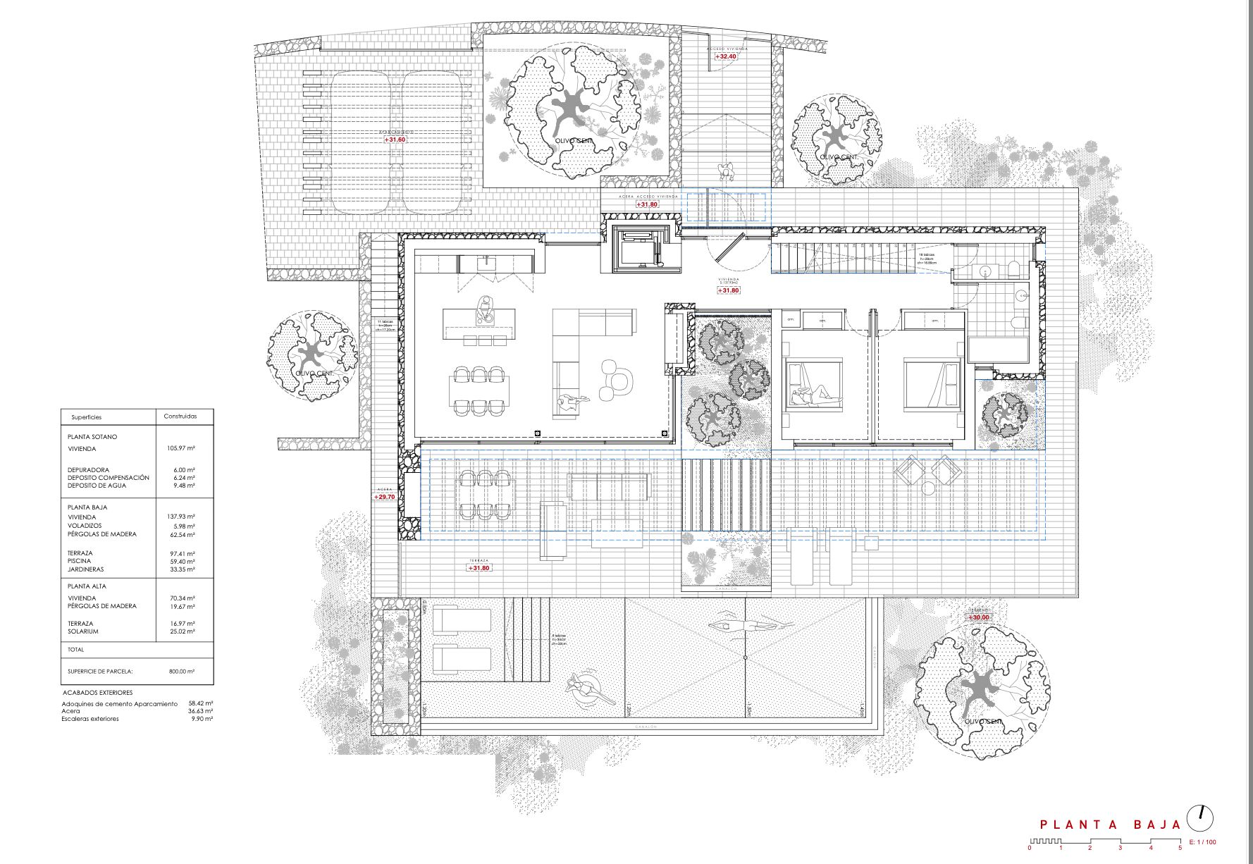
The villa is spread over three floors. Large windows provide plenty of light and a seamless connection between indoor and outdoor spaces. On the ground floor, there is an open-plan living-dining room with a modern, fully equipped kitchen, two bedrooms, a bathroom and a guest toilet. From the spacious terraces and the infinity pool, you can enjoy the panoramic sea views.
The upper floor is entirely dedicated to the master suite with walk-in wardrobe, bathroom and large private terrace. There is also an additional room that can be used as a bedroom or office. The roof terrace features a solarium with panoramic views.
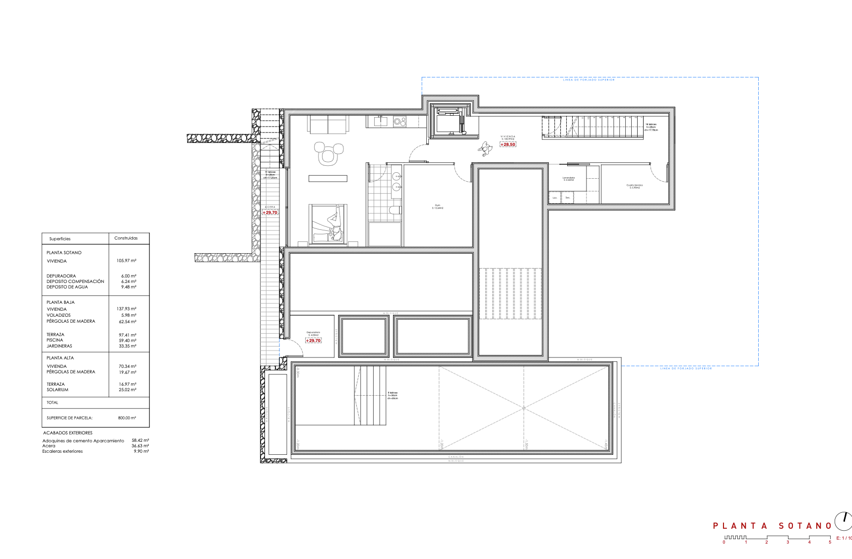
The basement has a gym, guest apartment, laundry room, technical installations and additional storage rooms.
Details
4 bedrooms, 3 bathrooms and guest toiletPanoramic sea viewsWalking distance (5 minutes) to the beachElectric shutters in the bedroomsAlarm ParkingVarious terracesLarge swimming pool (almost 60 m²)Gym, guest accommodation and elevatorUnderfloor heating and air conditioningSouth-east orientationWhy view this villa
Panoramic sea viewsCentral locationWalking distance to restaurants and beachHigh-quality finishEnergy efficientRenowned builderA Mediterranean villa for sale in Benissa with a luxurious feel in an excellent location.
Would you like to know more about this new project on the Benissa coast Contact our office and we will be happy to help you.






FLOOR PLANS

Measure for measure

ENQUIRE

About this property

Carreterra Moraira - Teulada No 1, Floor 1, Suite 10, Moraira 03724 Alicante
+34 966 829 503
info@directowner.co.uk
www.directowner.co.uk

Direct Owner on Facebook Direct Owner on Google Plus Direct Owner on Instagram Direct Owner on Linked In Direct Owner on Pinterest Direct Owner on Twitter Direct Owner on Skype