Logo: Direct Owner Moraira estate agents

Tel: +34 966 829 503

Language EnglishLanguage DutchLanguage SpanishLanguage FrenchLanguage German

BENITACHELL

Villa

1.250.000€

Ref: DF4014

 276m2
 745m2
 No
 Town: N/A
 3
 5
 Beach: N/A
 Yes
 Build N/A
 EPC Rating:
We present an unprecedented opportunity to acquire a modern design villa in one of the most prestigious residential areas of the Costa Blanca: Cumbre del Sol, in Benitachell. This privileged enclave, located between Jávea and Moraira, offers an unparalleled environment where nature, serenity, and highlevel comfort merge in perfect harmony.
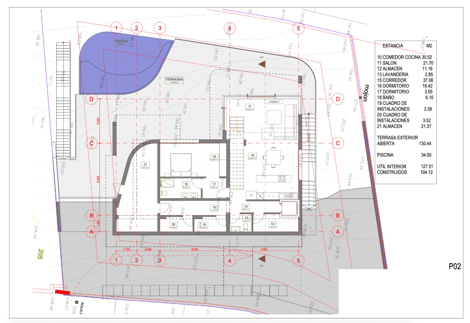
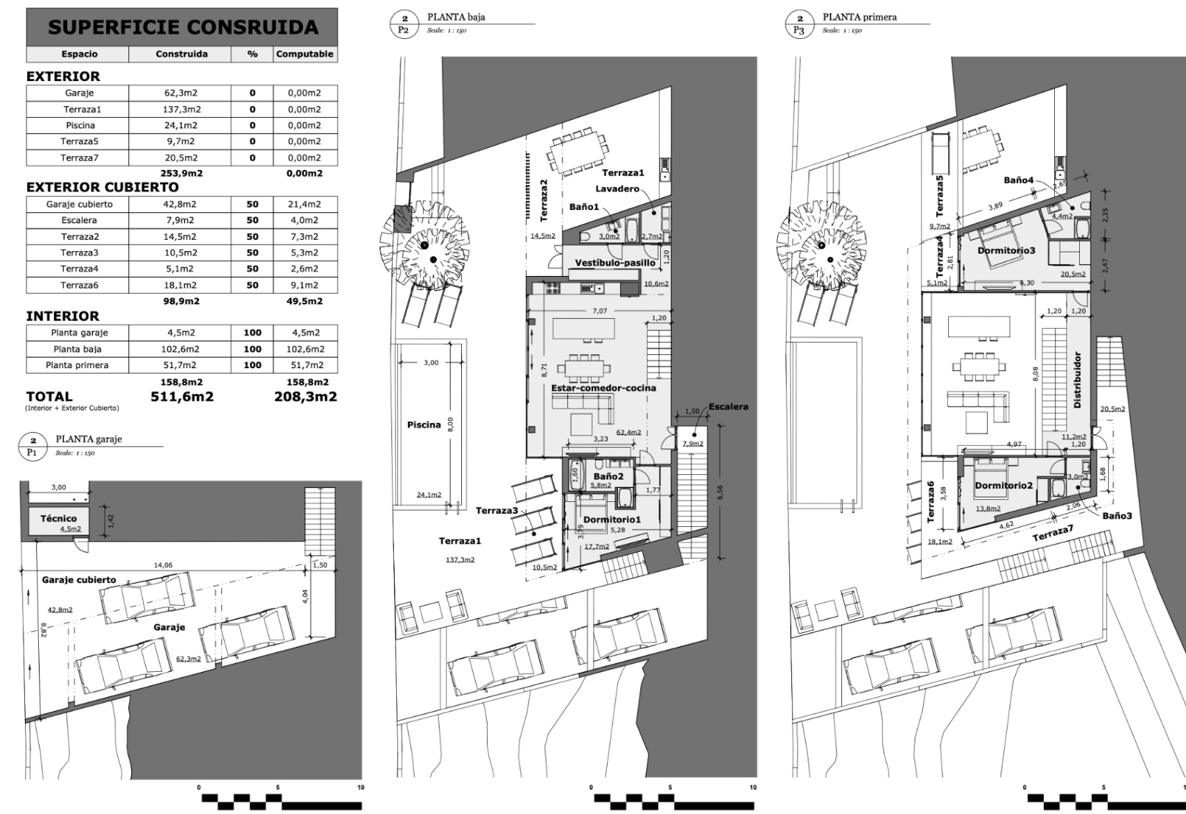
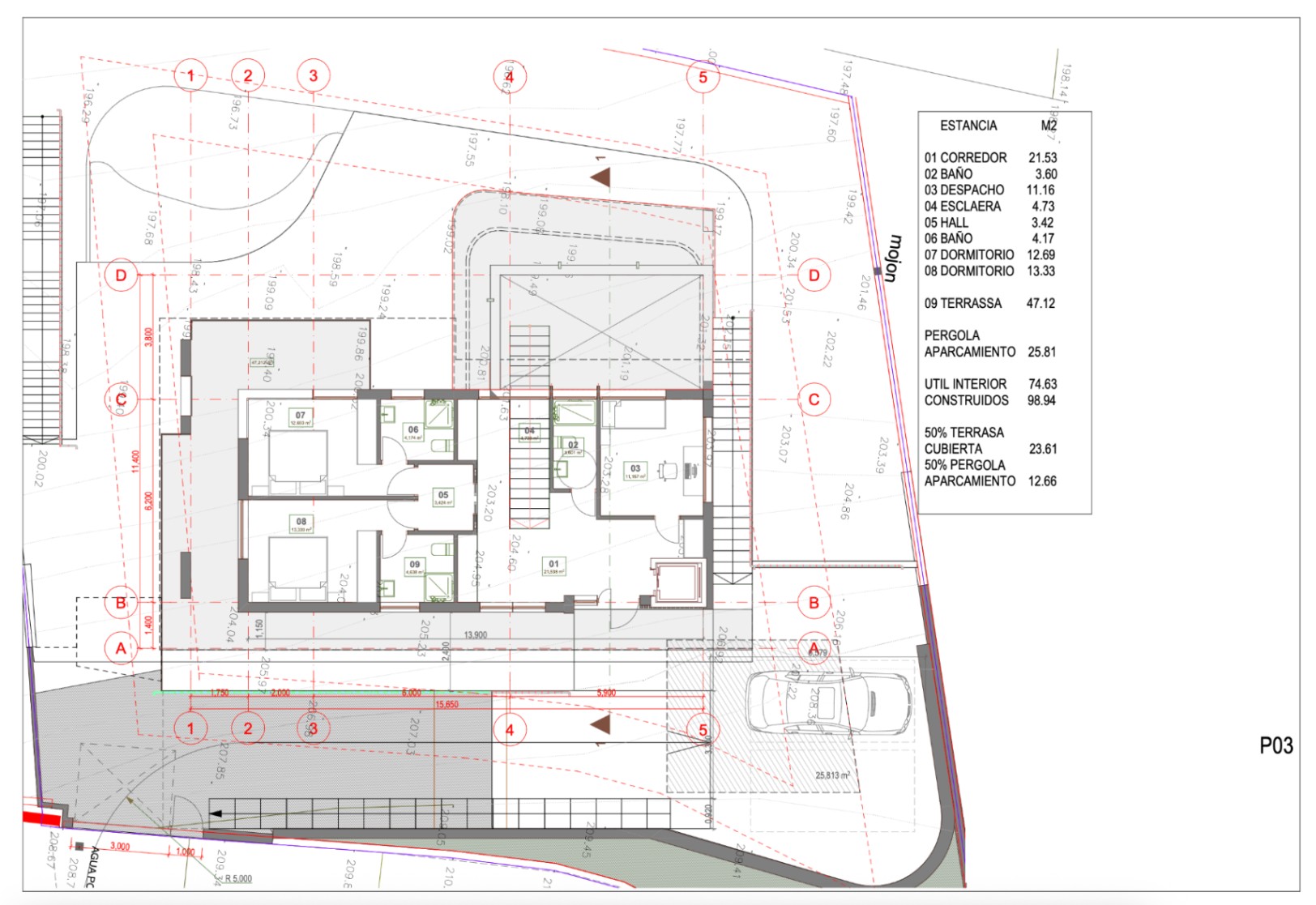
This exclusive project includes the construction of an elegant singlefamily villa of 276 m² distributed over two levels.
The property features 3 bedrooms, 1 office, 5 bathrooms, and generous living spaces with a living room, dining room, and kitchen integrated into an open concept, filled with natural light.
The design also includes a large panoramic terrace and a private pool of 34 m², perfect for enjoying relaxing moments with stunning views of the Mediterranean Sea and the surrounding mountains.
Every detail of the property has been meticulously planned to offer a discreet luxury lifestyle, with topquality finishes and selected materials to ensure durability, aesthetics, and functionality.
Situated just minutes from the renowned international school Lady Elizabeth School, this property is ideal for families seeking a safe residence, quality of life, and proximity to all services, as well as enjoying the beaches, coves, and marinas of Moraira and Jávea.
A secure investment in quality, location, and lifestyle.
Do not hesitate to contact us for more information or to schedule a visit to this magnificent project.

FLOOR PLANS

Measure for measure

ENQUIRE

About this property

Carreterra Moraira - Teulada No 1, Floor 1, Suite 10, Moraira 03724 Alicante
+34 966 829 503
info@directowner.co.uk
www.directowner.co.uk

Direct Owner on Facebook Direct Owner on Google Plus Direct Owner on Instagram Direct Owner on Linked In Direct Owner on Pinterest Direct Owner on Twitter Direct Owner on Skype