Logo: Direct Owner Moraira estate agents

Tel: +34 966 829 503

Language EnglishLanguage DutchLanguage SpanishLanguage FrenchLanguage German

MORAIRA

360.000€

Ref: DF4016

 75m2
 N/Am2
 No
 Town: N/A
 2
 1
 Beach: N/A
 No
 Build N/A
 EPC Rating:
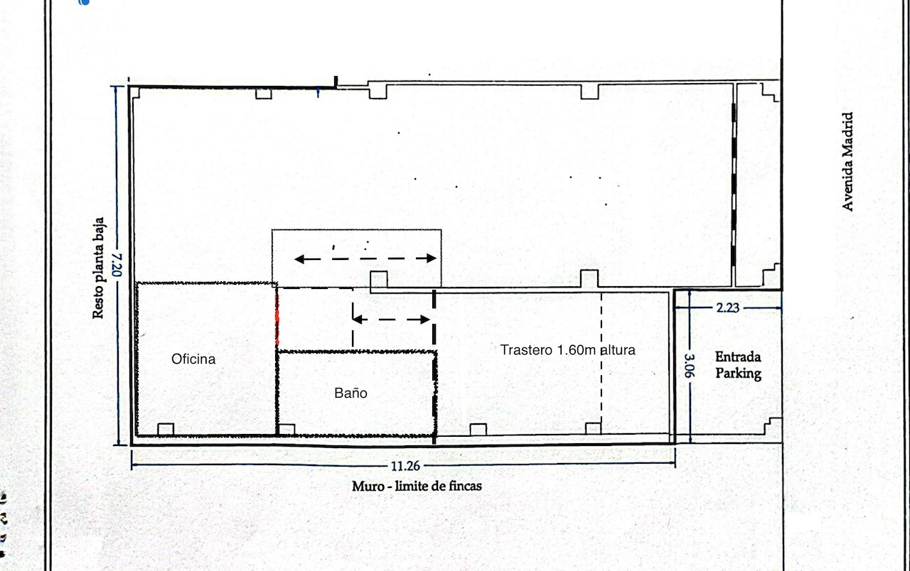
Spacious premises with office, bathroom and parking access
A spacious commercial property is for sale in Moraira, located in a strategic area next to Avenida Madridideal for entrepreneurs, investors, or businesses seeking visibility and easy access.
The premises feature a functional layout that includes:
A large open-plan area with multiple possible uses and excellent space utilization.An independent office, perfect for administration, management, or a private service area.A full bathroom, conveniently and practically located within the premises.A storage room with 1.60 m height, ideal as additional storage space.A wide façade and a rectangular layout that maximizes natural light and functionality.
With a total length of approximately 13 m, this property offers great potential for commercial activities, a professional office, warehouse, or showroom.
Prime location: Situated on one of Morairas main avenues, in an area with foot traffic, services, and easy connectivity.
If you are looking for a commercial premises in Moraira with multiple possibilities, a good layout, and excellent access, this property is a unique opportunity.
Contact us for more information or to arrange a viewing.

FLOOR PLANS

Measure for measure

ENQUIRE

About this property

Carreterra Moraira - Teulada No 1, Floor 1, Suite 10, Moraira 03724 Alicante
+34 966 829 503
info@directowner.co.uk
www.directowner.co.uk

Direct Owner on Facebook Direct Owner on Google Plus Direct Owner on Instagram Direct Owner on Linked In Direct Owner on Pinterest Direct Owner on Twitter Direct Owner on Skype